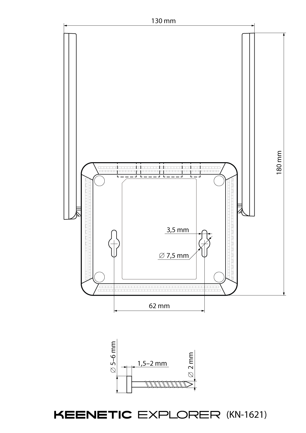
Router wall mounting information
All Keenetic router models have a wall mount option. There are two holes on the back of the case.
Important
Mounting elements (self-tapping screws and wall plugs) are not included with the router.

Information on mounting hole spacing and screw specifications:
Model | Explorer (KN-1621) |
|---|---|
Distance between holes | 62 mm |
Head diameter | 5–6 mm |
Head height | up to 1.5–2 mm |
Thread | 2 mm |
Thread length | at least 20 mm |
For example, for the larger Keenetic Hero 4G, Hopper, Sprinter, and other models:

Below is the wall mounting template (PDF format) for your Keenetic: